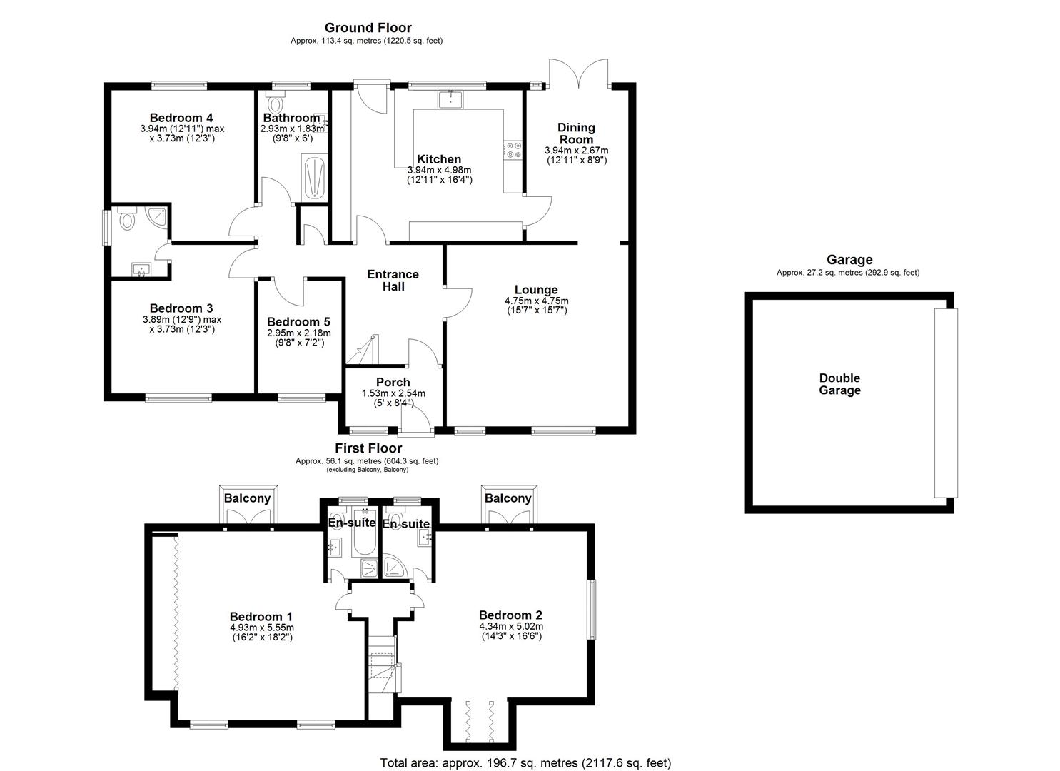
5 bedroom
4 bathroom
2 receptions
2118 sqft
5 bedroom
4 bathroom
2 receptions
2118 sqft
front
lounge
kitchen
bedroom one
lounge
lounge
lounge
lounge
kitchen
kitchen
kitchen
kitchen
kitchen
bedroom one
bedroom one
bedroom one
en-suite
bedroom two
bedroom two
bedroom two
bedroom two
bedroom two
en-suite
bedroom three
bedroom three
bedroom three
en-suite
bedroom four
bathroom
bathroom
garden
garden
garden
garden
front
front
front
front
front
front
gates








































