3 bedroom
2 bathroom
2 receptions
1622 sqft
3 bedroom
2 bathroom
2 receptions
1622 sqft
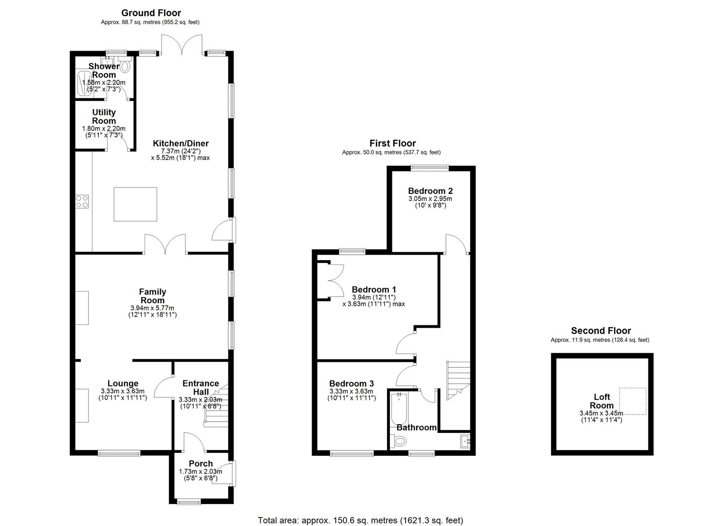
Welcome to Monks CottagesStep inside a bright and welcoming kitchen/dining room, offering a wonderfully versatile space ideally suited to modern family living. The kitchen is fitted with classic wooden cabinets, complemented by solid black worktops and stylish monochrome metro tiling. Integrated appliances include a dual-fuel Rangemaster cooker with a five-ring gas hob, griddle plate, twin ovens and warming drawer, alongside a matching extractor hood and integrated dishwasher. A central island provides additional storage and features a traditional Belfast sink, creating a practical yet characterful focal point.
The dining area sits adjacent, providing an excellent space for entertaining family and friends, with French doors opening directly onto the garden. A separate utility room offers space for a fridge freezer, washing machine and tumble dryer, and leads through to a well-appointed wet room. Both the kitchen and dining areas further benefit from underfloor heating.
Glazed doors lead through to the family room, where a charming brick-built fireplace with a copper hearth forms an attractive focal point, creating a calm and warm space. An archway opens into an additional reception room, featuring a further fireplace with log burner and pleasant views to the front.
Upstairs is a spacious landing providing access to three well-proportioned bedrooms. Bedroom one benefits from mirrored fitted wardrobes and a pull-down ladder leading to a converted loft space, currently utilised as a home office. Bedroom two enjoys views over the rear garden, whilst bedroom three offers built-in storage. The family bathroom has been tastefully modernised and comprises a three-piece suite, including a bath with shower attachment and a vanity unit with useful storage.
Outside is a south-facing garden, featuring a patio, lawn and a shed for storing gardening equipment and bikes. To the rear and front is on-street parking.
The property is conveniently situated within a stone’s throw of excellent sporting facilities, local shops and Buckden Primary School, as well as two day nurseries. This superb home is ideally suited to a growing family and early viewing is highly recommended.
front
kitchen/dining room
kitchen
kitchen
kitchen
kitchen
kitchen
kitchen
kitchen
kitchen
dining room
dining room
dining room
dining room
kitchen
family room
family room
family room
family room
family room
lounge
lounge
lounge
lounge
lounge
bedroom one
bedroom one
bedroom one
converted loft
bedroom two
bedroom three
bathroom
bathroom
bathroom
utility room
wetroom
wetroom
garden
garden
garden
front
from above
sports facilities
sports facilities











































