4 bedroom
4 bathroom
2 receptions
3847 sqft
4 bedroom
4 bathroom
2 receptions
3847 sqft
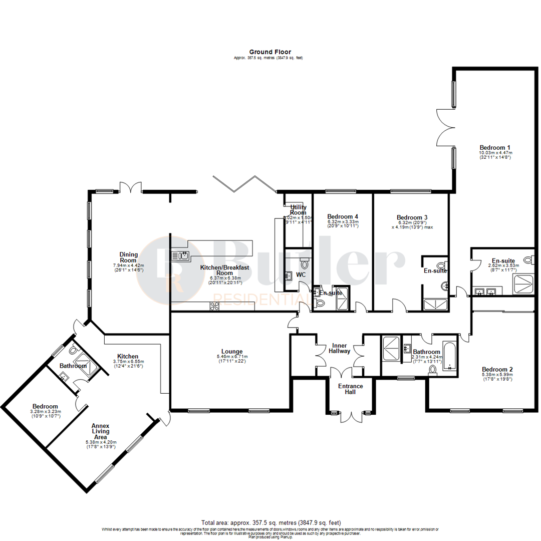
Welcome to Frith MeadowStep inside a bright and welcoming porch leading into the hallway. The walls are adorned with classic panelling, creating a sophisticated entrance. Symmetrical double doors provide ample storage for coats and bags, along with a dedicated shoe cupboard, perfect for any collection.
A spacious lounge immediately captivates with an abundance of natural light, providing an excellent space for the whole family to relax. The focal point of the room is the impressive ambient lighting above, creating a calm and cosy atmosphere.
Moving through to the heart of the home the kitchen, which has been finished to perfection. Two-tone cabinets add a touch of style, giving the space an open and timeless feel. Bi-fold doors let in plenty of natural light, seamlessly bringing the outside in. There is a large breakfast bar for informal dining, feature pendant lighting along with a built-in sofa, the perfect spot to enjoy your morning coffee while taking in the views of the garden. Integrated appliances include double Neff ovens, an AEG induction hob with an extractor fan, a full-size fridge with a separate freezer, and a Kenwood dishwasher. Additionally, there is an instant hot water tap for added convenience. Off the kitchen is a utility room with space for a washing machine and tumble dryer.
As we make our way to the formal dining area, we are greeted by a spectacular custom-made wave ceiling with inset ambient lighting. This home is perfect for hosting, with ample space for a large dining table to accommodate family and friends. A cosy TV area is a wonderful addition to the space, especially for families with young children.
Completing the left wing of the property is a downstairs W/C.
Sleeping QuartersThe property features four spacious double bedrooms. Bedroom one is the grand suite, overlooking the garden, and includes its own dressing area with built in bespoke wardrobes as well as a modern walk-in wet room, with dual sinks. Bedroom two overlooks the front of the property and has floor-to-ceiling mirrored wardrobes. Bedrooms three and four offer views of the garden, and both come with en-suite shower rooms. The large family bathroom has been finished to a very high standard and includes a bath with waterfall taps and a walk-in wet room shower.
Garden OasisThe garden is a suntrap with a westerly facing view. There is a decked patio space outside the dining room, with raised borders and an expansive lawn with silver birch trees around the perimeter. To the back is a large children's play area and a built-in seating area with a fire pit. To the right is an additional raised patio with space for a large outdoor dining table and BBQ. Additionally there is planning permission for a swimming pool to be added.
To the front is a landscaped gravel driveway, with a turning circle and space to the right for multiple cars.
The Lock-Inn TavernThe Lock-Inn Tavern is a fully converted outbuilding with a social space like no other. Imagine hosting sport events, parties and get togethers from your very own garden bar. No last orders here! The space also includes toilets and a large storage area.
Garden AnnexeTo the left of the garden is a custom-built, two bedroom annexe. Complete with a lounge, kitchen and dining room, two bedrooms and a shower room, this would be ideal for relatives or older children needing their own space. It would also make the perfect office space for those working from home or looking to run a business from home.
Adjoining AnnexeTo the left of the property is an adjoining one bedroom annexe. Originally part of the main house, this space is currently being privately let, but could be opened back up to create additional living space (via an entrance in the dining room) or be used for multi-generational living.
What's In The Area?Landbeach is a small village located just north of Cambridge. It offers a peaceful, rural setting while still being close to the amenities and attractions of Cambridge and Ely. Just south of Landbeach, Waterbeach has amenities such as shops, a post office, and a train station with direct rail links to Cambridge and London. Milton park and ride is a short drive away and get's you into Cambridge in less than twenty minutes.
Agents NoteIn compliance with Section 21 of the Estate Agency Act of 1979 we declare that there is a personal interest in the sale of this property, the vendor is related to a member of staff of Butler Residential Estate Agents.
garden
Kitchen
Kitchen
front
Entrance Porch
Entrance Porch
Entrance Hall
Entrance Hall
Built In Shoe Storage
Built in Cloakroom
lounge
Lounge
lounge
lounge
lounge
Kitchen
Kitchen
Kitchen
Kitchen
Kitchen
Kitchen
Kitchen
Kitchen
Kitchen Snug
Dining Room
Dining Room
Dining Room
Dining Room
Dining Room
Snug
Snug
Utility Room
W/C
games room
games room
games room
games room
games room
games room
games room
bedroom
bedroom
bedroom
bedroom
bedroom
bedroom
bedroom
bedroom
dressing area
dressing area
dressing area
dressing area
bedroom
bedroom
bedroom
bedroom
En-Suite Wetroom
En-Suite Wetroom
En-Suite Wetroom
Bedroom Two
Bedroom Two
Bedroom Two
Bedroom Two
Bedroom Two
Family Bathroom
Family Bathroom
Family Bathroom
Family Bathroom
Family Bathroom
Hallway
Bedroom Three
Bedroom Three
Bedroom Three
Bedroom Three
En-Suite Shower Room
En-Suite Shower Room
The Lock Inn
The Lock Inn
The Lock Inn
The Lock Inn
The Lock Inn
The Lock Inn
The Lock Inn
The Lock Inn
Garden Annexe
Garden Annexe
Garden Annexe
Garden Annexe
Garden Annexe
Garden Annexe
Garden Annexe
Garden Annexe
Plot Size
Frith Meadow
Surrounding Fields
Driveway
twilight
twilight
twilight
twilight
twilight
twilight
twilight
garden
garden
garden
garden
garden
garden
front
garden














































































































